loue

Réf : 2389

45.08 M² Utiles

GERARDMER

580€/mois*

45.08 M² UtilesSuperficie

2Pièces

1Chambres

1Salles d'eau

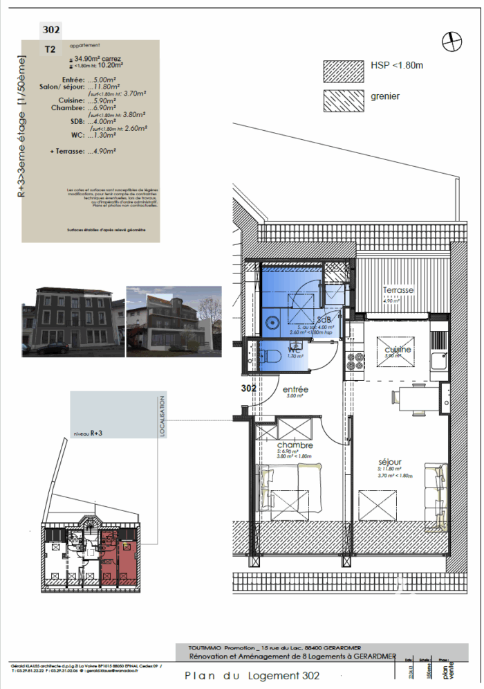
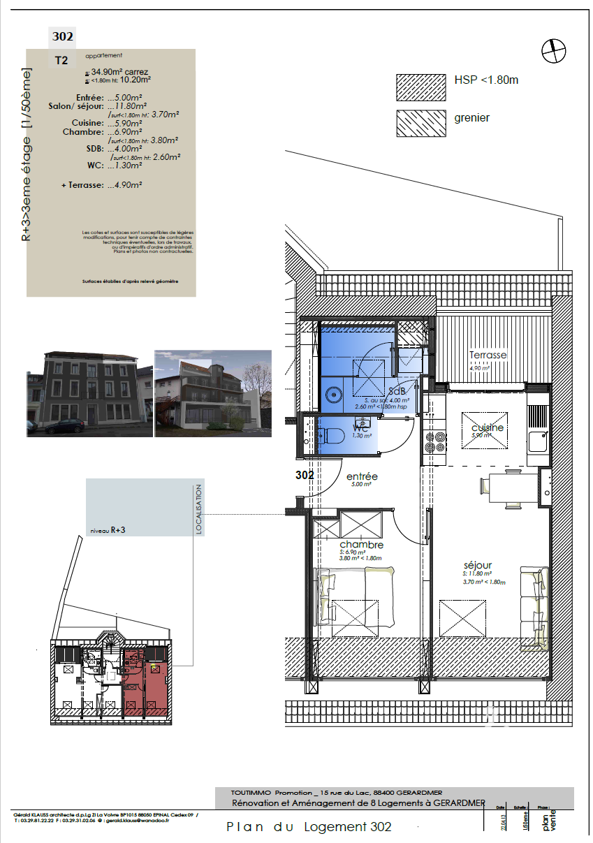
GERARDMER : Appartement de type F2 RÉCENT MEUBLÉ au 3ème étage de 45.08 M² Utiles (34.93 M² Habitables) + TERRASSE & CAVE.

Composé de :
1 hall d’entrée + placards, dégagement, 1 WC + lave-mains, 1 salle de douches à l’italienne + meuble + espace MAL / sèche-linge, 1 cuisine intégralement équipée sur salon séjour avec accès terrasse, 1 chambre + dressing.

DÉPENDANCES : CAVE PRIVATIVE – PARKING COMMUN.

EN PARFAIT ÉTAT – RÉCENT – CENTRE-VILLE – LUMINEUX – BELLES PRESTATIONS – DERNIER ÉTAGE.

Loyer : 550€ + 30 € de charges (Eau, EDF des communs, ménage des communs, OM).

Libre de suite
(Frais d’agence: 275 € TTC)

Agence du Cygne

Nos autres locations

Ce bien vous intéresse ?

Contactez-nous au 03 29 63 63 00
ou renseignez vos informations et nous vous recontacterons
dans les plus bref délais.

* Champs requis